PARTNER INFO
Organisational information for WebExpo 2025 Partners
🗓️ Important deadline:
- Please complete the partner form by 7 May to arrange your booth setup, equipment needs, and all other necessary details.
Jump to section:

On-site contact
Your on-site contact during the conference will be:
Eva Klierová
📱 +420 777 315 510
BOOTH SETUP and EQUIPMENT
Booth setup
The booth can be set up on Tuesday, 27 May or early morning on Wednesday, 28 May. All booths must be fully ready by Wednesday, 28 May at 7:00 AM, when we expect the first attendees. Please select your preferred setup time in the partner form.
🚗 Arrival:
- Due to limited parking around Lucerna Palace, we have organised arrival time slots for Tuesday, 27 May.
- After submitting the form, you will receive available time slots to choose from.
- If you plan to arrive with more than one car, please indicate this in the form.
- If you need to change your assigned time slot, please contact Kateřina Hamouzová by 15 May.
🛻 Unloading spot:
- Location: Štěpánská Street at the entrance to Passage Lucerna.
- Max stay: 15 minutes. This area is used for unloading and loading only, it is not possible to park there!
- Please adhere to the agreed arrival time.
Booth equipment
- 5 electrical sockets (if you require more, please bring your own extension cords)
- Internet connection (Wi-Fi)
- Optional: Tables and chairs (please specify your needs in the partner form)
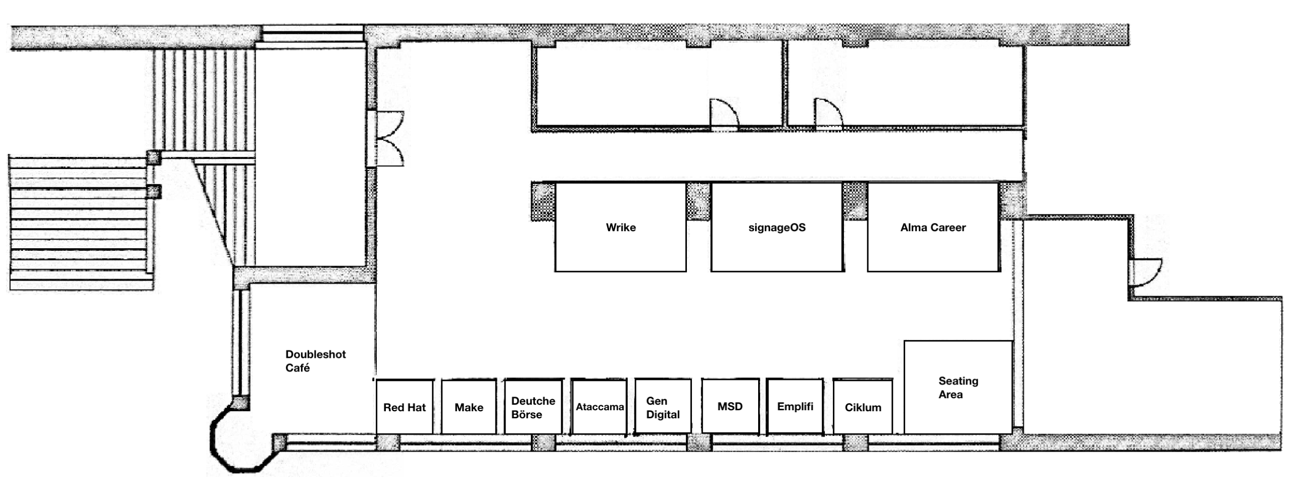
Floorplan preview 📍 (orientational only)
To help you better plan your booth setup, we’ve included a floorplan of the Partner Hall below. Please note that this map is orientational and booth placements may slightly change.

Booth disassembly
- It can begin on Thursday, 29 May after 5:00 PM.
- All materials must be removed from the venue by Thursday evening.
- Be aware of the limited loading area, and note that departure times are not assigned.
- Please pack your items first, then arrange car pickup to avoid blocking the loading area for more than 10 minutes.
Tip: A small trolley or cart may help with unloading and loading, but please note there are some stairs at the venue.
Your TEAM at the booth
You will receive booth badges granting access to the Partner Zone only, not to the conference halls.
- Gold Partners: up to 12 colleagues
- Silver Partners: up to 8 colleagues
Please fill in the names and email addresses of your booth colleagues in the form. Eva Klierová will distribute the badges during booth setup.
your Rollups
As part of your partnership benefits, you may display up to three roll-ups within the conference halls.
Delivery:
- Please deliver your roll-ups to Eva Klierová on Tuesday, 27 May during the day or Wednesday, 28 May by 7:00 AM.
- Please ensure that the roll-ups are packaged and labelled with your company name.
- Our team will be responsible for placing the roll-ups in the designated conference areas.
Roll-up collection after the event
- Roll-ups can only be packed after the conference program ends on Thursday, 29 May at 6:00 PM.
- Our team will collect the roll-ups and hand them back to you. Please allow us approximately one hour to prepare them for you.
If you are unable to collect your roll-ups on Thursday, they will be available later at our storage location.
Pickup dates and times:
- 11 June between 10:00 AM and 2:00 PM
- 13 June between 10:00 AM and 2:00 PM
- 17 June between 10:00 AM and 4:00 PM
📍 Pickup address: Krásova 704/10, Prague 3, 130 00.
📞 Point of contact: Kateřina Hamouzová, cell: +420 778742017
Conference GameS
We’re bringing two fun ways to engage attendees:
🎯 Dart game
Want to make our legendary dart competition extra exciting? Donate a small prize (like a power bank, mug, or tote bag). Just bring it along during booth setup. You’ll make someone’s day!
📱 App game
Attendees earn points in the WebExpo app by completing activities, including visiting partner booths. After a quick chat, just let them scan your unique QR code.
We’ll print your code for you (preview it here). Want to customise it? Download it here and style it your way.
The grand prize? A free ticket to WebExpo 2026.